[안전쉘터(Shelter),신호수대기실 개요] 피닝하우스 인천항만공사 with 타스(TASS),선익정밀
안전쉘터(Shelter),신호수대기실
피닝하우스 제작 part.1
안녕하세요!~ 항만도시 남자 항도남 입니다.
이번에 제작되고 있는 신호수대기실 관련한 개요를 설명하고자 글을 작성하게 되었습니다.
.
항만사업장의 야드에는 크고 작은 사고가 종종 발생하는데 특히나 안전쉘터(Shelter) 의 경우
컨테이너 하역 작업 시 근로자들이 보호받을 수 있도록 돌발 상황 시 낙하물로부터 보호받을 수는 대피공간
작업 중 휴게공간, 폭염, 우천 등 기상악화 및 계절 질환 예방 등 산업재해 위험요인 방지를 위해 제작됩니다.
더군다나 이번의 인천 쪽의 사업 계획의 쉘터(Shelter) 지원내용이 있어
E-1,PSA,한진,선광신항 등 인천의 주요 4곳의 터미널에 설치를 하기 위해
선익정밀은 여러 차례 미팅을 가져왔습니다.
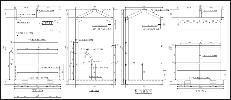
고객 측에서 받은 도면과 실물을 토대로 외곽 size를 확인하고, 도면 작업에 착수합니다.
참고로 상기 사진 속의 쉘터(Shelter)는 선익정밀 & 예호테크에서 부산항만공사 측으로
2019년도 납품 한 제품입니다.
1차 도면이 완성되고, 회의를 위해 다시 인천으로 이동합니다.
미팅에 앞서 현장의 상황을 체크하기 위해 PSA 팀장님과 야드로 이동하여 필요한 부분의 치수를 확인하고,
변수를 확인합니다.
야드의 차선 폭: 2700mm, YT 차량의 폭 : 2650mm , 쉘터 차선 폭 : 1700mm , 쉘터 폭 : 1200mm
확인 결과 부산과 달리 YT 차량이 이동하는데 차선의 여유가 없는 상태라 쉘터(Shelter)가 설치되면
한 쪽당 250mm밖에 여유가 없어지므로 YT(yard Trector)끼리의 충돌사고 우려가 있어
운영팀과 협의하여 QC(Quay Crane) 옆 1차선을 활용하여 쉘터를 설치, 작업하는 것으로 협의하였습니다.
그리고 인천은 부산과 달리 인원의 제약이 있어 경량화가 요구되고, 기상변화가 심하고 온도가 영하권으로
떨어지기 때문에 세부내용에 대한 협의가 있었습니다.
추가 내용으로는 쉘터(Seltor) 일부는 알루미늄으로 제작하여 무게를 40%이상 경량화 시키고,
고중량 캐스터를 부착하여 지게차나 호이스트 없이 이동 가능하게 하였으며
강풍이나 비탈길에 미끄러지지 않도록 레벨링 풋 4면 설치
태양열 제품을 사용하여 LED 경광등을 설치하여 야간작업에 효율을 높였습니다.
또한 전기 공급을 위한 콘센트 설치 및 공업용 스토브를 부착하여 겨울철에도 근로자들이 안전하고,
복지를 향상시킬 수 있도록 하였습니다.
부산에 도착하자마자 관련된 회의록 및 세부내용 적어서 전달드립니다.
인천항만공사 측과 함께 진행하는 건이라 내용이 누락되는 부분이 없도록 다시 한번 꼼꼼히 검토합니다.
그 사이 인천항만공사 안전쉘터 관련하여 이렇게 주요 뉴스가 나왔네요.~
작업 사진입니다.
전자 제품들도 제작이 되는 동안 TEST를 따로 실시합니다.
개량 결과 무게는 예상치와 별 차이 없는 280kg 정도가 나오는 걸 확인했습니다.
뭐 기타 잔잔한 부품까지 합치면 약 300kg 정도 나가겠죠?
여기까지 인천항만공사측과 인천의 주요 4터미널에서 공동 제작, 개발한 안전쉘터(Shelter),신호수대기실의
작업 과정이었습니다.
구조물, 항만하역장비 수리 및 제작 등
문제점은 (항도남) 최윤호 차장에게 문의하십시오
신속 정확 깔끔한 일처리 하겠습니다.
이메일 : younho0055@naver.com
이름 : 최윤호 차장
연락처 : 010.2621.0056
#안전쉘터 #Shelter #신호수대기실 #선익정밀 #인천항만공사 #부산항만 #북항 #피닝하우스 #신항 #타스 #TASS














